Про мене Приклади виконаних робіт Блог

Проєкти організації будівництва та Проєкти виконання робіт

Інженерні рішення для будівництва цивільних, промислових та інфраструктурних об’єктів

Розробка Проєктів організації будівництва (ПОБ) та Проєктів виконання робіт (ПВР)

- З дотриманням всіх вимог нормативної документації.

- 13 років досвіду в галузі (розробка ПОБ, ПВР, висновків про технічний стан будівель, архітектурних проєктів).

- 170+ успішно реалізованих проєктів.

- Всі види будівельних об'єктів - житлові, промислові, споруди цівільного захисту, дитячі садки, інженерне обладнання.

- Проходженння експертизи та коригування проєкту згідно з зауваженнями.

- Увага до особливих умов кожного об'єкту та вимог замовника. Кожен будівельний об'єкт є унікальним, тому під час розробки організаційно-технологічних рішень розглядаються умови будівництва, характерні особливості об'єкту, побажання або особливі вимоги замовників.

Що таке Проєкт організації будівництва?

Проєкт організації будівництва є ключовим організаційно-технологічним документом, який розробляється для об’єктів різного функціонального призначення - від цивільних будівель і споруд до промислових комплексів, а також споруд цивільного захисту, таких як укриття (бомбосховища). Документація визначає оптимальні рішення з організації будівельного процесу із застосуванням сучасних технологій та раціональних методів виконання робіт.

Проєкт організації будівництва розробляється відповідно до чинних нормативно-правових актів та стандартів, зокрема ДБН А.3.1-5:2016 "Організація будівельного виробництва" та ДБН А.3.2-2-2009 "Охорона праці і промислова безпека у будівництві".

На підставі затвердженої проєктної документації замовник і підрядна організація отримують необхідні дозволи на виконання будівельних робіт у встановленому законодавством порядку, а також мають можливість визначити орієнтовну вартість будівництва об’єкта.

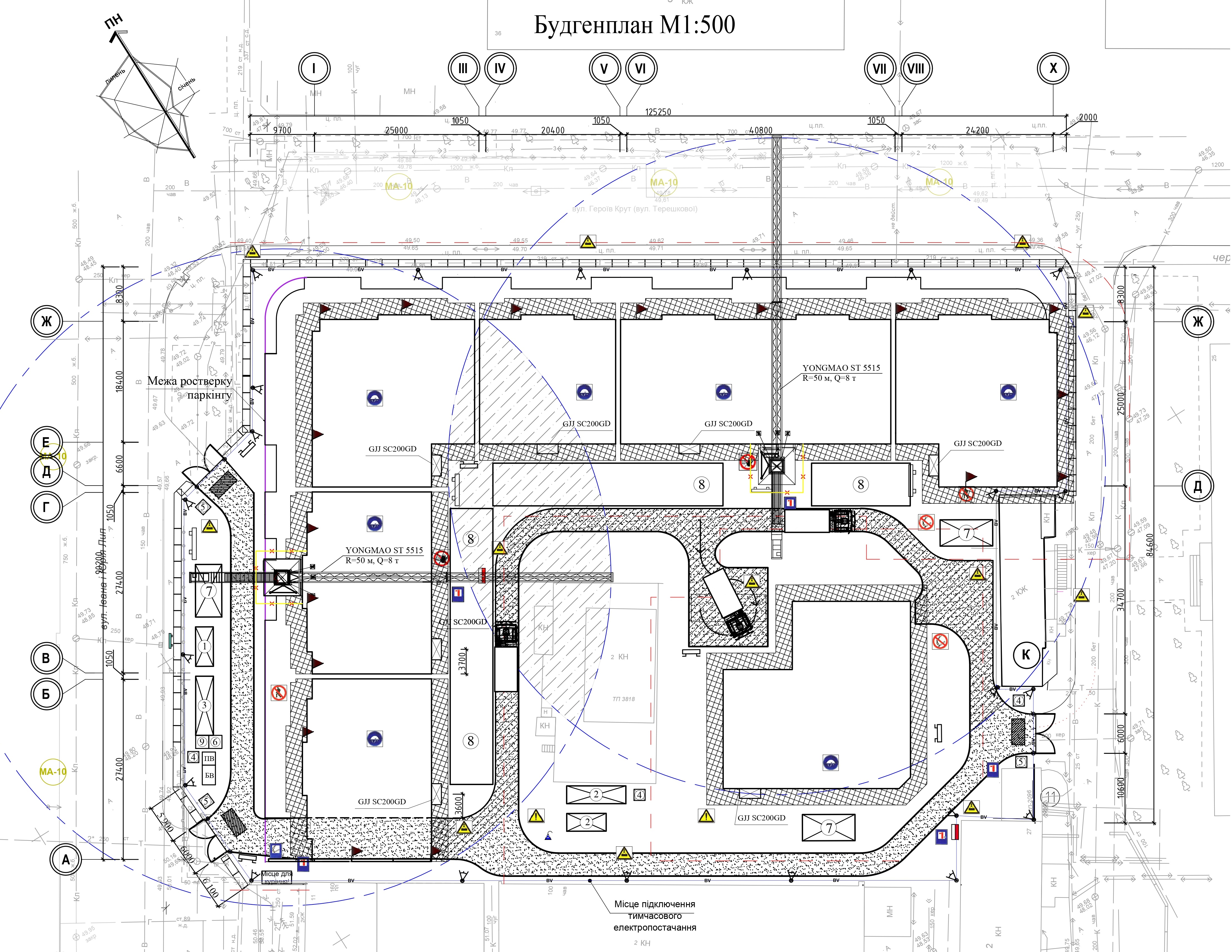
Будгенплан

Проєктування ПОБ та ПВР для обʼєктів будь-якої складності

Виконую розробку Проєктів організації будівництва та Проєктів виконання робіт для широкого спектра обʼєктів цивільного та промислового призначення. Підхід до кожного проєкту базується на аналізі умов будівництва, логістики, технологічних процесів та реальних можливостей виконання робіт.

ПОБ і ПВР розробляються з урахуванням стадійності будівництва, обмежень будівельного майданчика, існуючої забудови, інженерних мереж та вимог замовника.

Будгенплан

Типи обʼєктів, для яких виконуються ПОБ та ПВР

Маю практичний досвід розробки проєктної документації для:

- захисних споруд цивільного захисту та укриттів (бомбосховищ).

- житлових будівель різної поверховості.

- громадських та адміністративних обʼєктів.

- промислових будівель і виробничих комплексів.

- складських та логістичних обʼєктів.

- мостів, шляхопроводів та транспортних споруд.

- зовнішніх та внутрішніх інженерних мереж.

Кожен проєкт розглядається як унікальний - з урахуванням умов будівництва, технології виконання робіт та вимог нормативної бази.

Супровід проєкту та проходження експертизи

Забезпечується супровід проєктів на стадії експертизи, включно з опрацюванням зауважень та коригуванням проєктних рішень. Робота ведеться до отримання позитивного висновку з урахуванням усіх вимог експертних органів.

За потреби проєкт може бути адаптований до змін вихідних даних, умов будівництва або додаткових вимог замовника.

Газовий об'єкт